Felújított, azonnal hasznosítható ipari ingatlan!

2050 Nyomtatás Ajánlás Facebook

Vállalkozók figyelem! Felújított, azonnal hasznosítható ipari ingatlan!
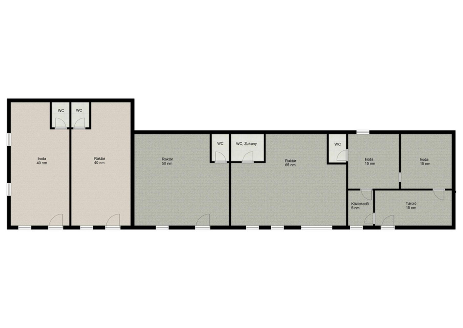
Ipari övezetben kínálunk eladásra egy 411 m²-es telken elhelyezkedő, két helyrajzi számon nyilvántartott ipari ingatlant. A telephelyen két épület található, egy 80 m²-es és egy 165 m²-es, összesen 245 m² alapterülettel, melyek teljeskörűen felújítottak, és azonnali hasznosításra vagy bérbeadásra alkalmasak.
Elhelyezkedése kiváló: a 8-as számú főút és a vasút közvetlen közelében, ami hosszú távon is stabil keresletet biztosít ipari és logisztikai bérlők részéről.
Stabil műszaki alap
Az épület vöröstéglából épült, 3 éve teljes felújításon esett át:
• 15 cm hőszigetelés
• új nyílászárók
• új világításrendszer
Rugalmas kialakítás
Az ingatlan jelenleg 5 különálló egységre osztott, gipszkarton válaszfalakkal, így:
• több bérlőnek is kiadható,
• vagy igény szerint egybenyitható,
• alkalmas raktárnak, irodának, műhelynek, kisebb termelésre.
Komfort, biztonság
• riasztó- és kamerarendszer minden helyiségben
• fűtő–hűtő klíma minden egységben
• kiegészítő norvég panel fűtés
A területen a szennyvízhálózat megújítása megtörtént, valamint tűzcsap is kiépítésre került, ami ipari jellegű hasznosítás esetén kiemelt előny. Két helyiségben 3x125 A ipari áram, három helyiségben 32 A került kialakításra.
Minden egységhez külön mosdó és WC tartozik, az egyik helyiség zuhanyzóval is rendelkezik.

Sztrida Anita

Sztrida Anita

Ingatlanértékesítő
Márkó
+36 (20) 318 4292
Észrevétel a hirdetéssel kapcsolatban
Egy ingatlanos naplója