Ház a tónál

7418 Nyomtatás Ajánlás Facebook

Eladó ~218,00 m2 alapterületű, tégla építésű családi ház Szegeden. Az 1082 m2 területű telek egyik különlegessége, hogy a hátsó kijárata zöld övezetben lévő tóra nyílik!
A kétszintes fő épületet tulajdonosai építtették 1982-ben, majd 2022-ben felújították. Az épületre 10 cm hőszigetelés és nemes vakolat került, felszerelésre kerültek a napelemek, és két klíma berendezés. Mindkét épületben kicserélték a villamos vezetékeket.
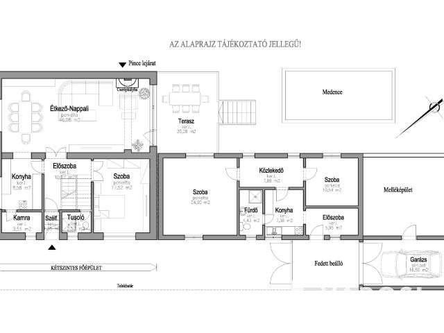
Az Étkező-Nappali alatt pince helyiség található, az épület tetején pedig napozó terasz.
Az ingatlan fűtését központi gázkazán mellett infra fűtés, két klíma berendezés és két cserépkályha is biztosítja.
A Főépülethez csatlakozik, de külön bejárattal rendelkező földszintes tégla lakás 1970 körül épült. Itt két szobát, konyhát , fürdőszobát találunk.
A főépületben a földszinten a Nappali-Étkező helyiséget, hálószobát, konyhát és zuhanyzó helyiséget alakítottak ki. Az emeleten két hálószoba, fürdő, tároló helyiségeket találunk. Az emeleten lévő két erkéllyel is rendelkező 30m2 alapterületű szoba kényelmes két háló kialakítását is lehetővé teszi. ( lásd: alaprajzok)
A remek tájolású udvaron, medencét, sütögető teraszt kemencével, lekerített gyümölcsöst, melléképületet, kiépített kutya kenneleket találunk.
A környéken, bevásárló központok, óvoda, iskola, kórház, gyógyszertár, benzinkút található, pár perces sétával busz és villamos megálló is elérhető.
Néhány információ az ingatlanról:

- Telek: 1082 m2
- Hasznos alapterület: ~218 m2

- Földszint: ~90,00 m2, Konyha,Kamra, Előszoba, Tusoló Wc-vel, Lécső tér,
Étkező-Nappali: ~46,00 m2, Hálószoba: ~17,00 m2, Terasz: ~20,00 m2

- Emelet: ~68,00 m2, Közlekedő, Fürdőszoba, Tároló,
Szoba ~14,60 m2
Szoba: ~30,00 m2, 2 db Erkély : 2x ~8,00 m2

- Pince: ~46,00 m2,

- Földszintes ház: ~60,00 m2, 2 db szoba, konyha, fürdő, közlekedő, előszoba


Az ingatlannal kapcsolatos kérdéseivel várom hívását, a hét bármely napján.

Ügyfeleink számára irodánk teljes jogi hátteret, adás-vétellel kapcsolatos térítésmentes jogi tanácsadást biztosít.
Bank semleges hitelügyintézéssel, díjmentes hitelszűréssel és tanácsadással is hozzájárulunk, hogy megtalálja az ön számára legkedvezőbb megoldást.

Sárai-Kovács Ágnes
PRÉMIUM

Sárai-Kovács Ágnes

5 éve a Városi Ingatlaniroda tagja
Ingatlanértékesítő
Hódmezővásárhely
+36 (30) 742 5020
Észrevétel a hirdetéssel kapcsolatban
Egy ingatlanos naplója