Sokoldalú ház Bakonybélben, ami vendégházként is bizonyított

3857 Nyomtatás Ajánlás Facebook

Bakonybél csendes, festői környezetében eladó egy 1992-ben épült, háromszintes, 260 nm hasznos alapterületű családi ház, amely ideális választás lehet életvitelszerű tartózkodásra, de szálláshely szolgáltatásra is kiválóan alkalmas.
Az ingatlan sokoldalúsága lehetővé teszi, hogy otthonná váljon, ugyanakkor az új tulajdonos számára vendégházként is működtethető, amit a jelenlegi tulajdonosok hosszú évekig sikeresen üzemeltettek.
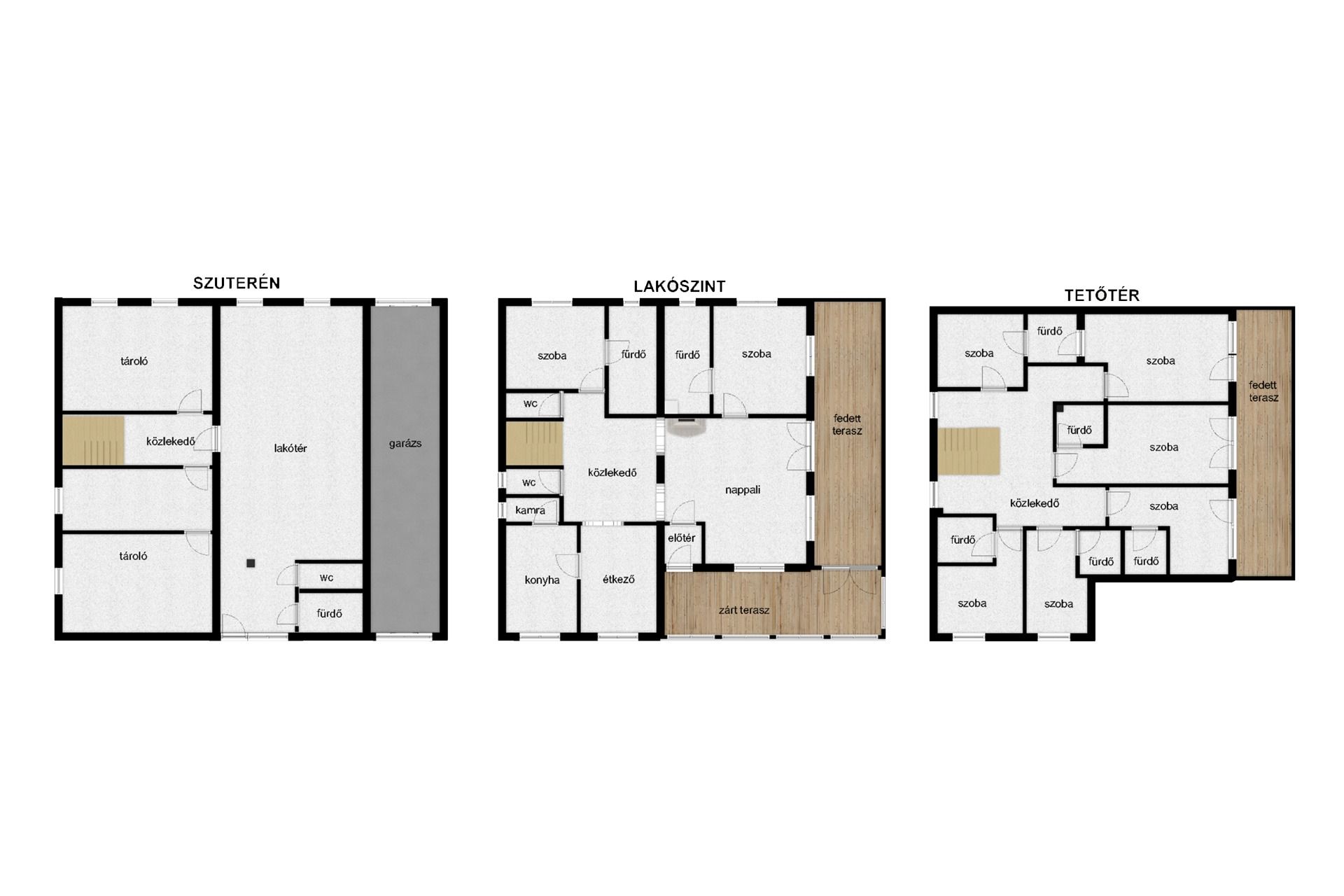
Az ingatlan elrendezése:
• Szuterén: Jelenleg különálló lakásként működik, de kiválóan alkalmas közösségi térként, ping-pong asztal, biliárd vagy egyéb játékok elhelyezésére. Ezen a szinten kapott helyet a nagyméretű garázs, a kazán, illetve két tárolóhelyiség is.
• Lakószint: tágas nappali, hatalmas, 40 nm-es alpesi hangulatú fedett terasz, étkező, konyha és két különálló szoba, mindkettő saját fürdőszobával és WC-vel
• A tetőtérben 6 szoba található, mindegyikhez saját fürdőszoba és WC tartozik, kifejezetten szálláshelyként való használatra kialakítva.
• Az 1000 nm-es gondozott udvaron nagyméretű medence, kültéri kemence és fedett kerti kiülő nyújthat kikapcsolódási lehetőséget a család vagy vendégek számára.
Műszaki paraméterek:
• A gázszilikát-pórusbeton falazat, a vasbeton födém és a Bramac tetőcserép garantálják az ingatlan jó hőszigetelő képességét és tartósságát.
• A padlófűtést fatüzelésű kazán biztosítja, amit egy cserépkályha egészít ki.
• Az ingatlan energiaellátását napelemrendszer segíti.
• A ház a folyamatos karbantartásnak köszönhetően nagyon jó állapotú, a lakószinten és a szuterénben a nyílászárók és a burkolatok cseréje megtörtént, a fedett terasz a tavalyi évben került kialakításra.
Bakonybél a Bakony egyik legkedveltebb települése, a természet szerelmeseinek és a pihenni vágyóknak egyaránt ideális úti cél. A környék számos túraútvonalat, kirándulási lehetőséget és egyedi természeti kincseket kínál. A szálláshelyek iránti kereslet évről évre növekvő, így ez az ingatlan kiváló lehetőséget biztosít azok számára, akik egy hosszú távon is fenntartható vendégházat szeretnének működtetni.
A ház élőben még többet nyújt, mint amit a képek és leírás mutatnak!

Sztrida Anita

Sztrida Anita

Ingatlanértékesítő
Márkó
+36 (20) 318 4292
Észrevétel a hirdetéssel kapcsolatban
Egy ingatlanos naplója