Tágas családi ház kivéletes környezetben

5687 Nyomtatás Ajánlás Facebook

Zala vármegye egy dombokkal és erdőkkel körbeölelt apró kis településén, A Letenye járáshoz tartozó Zajkon keresi új tulajdonosát ez tágas, sok lehetőséget rejtő családi ház. Zalj településen mindösszesen 200 lakos van, így a csendes környék biztosított. A környéken számos túraútvonal, a közelben több horgásztó is található. A termálvizes fürdőjéről ismert Bázakerettye település mindössze 15 km távolságra található.

Az ingatlanhoz 3750 nm nagyságú terület tartozik, így aki gazdálkodna, annak is ideélis választás lehet. A ház mögött a területen egy garázs, valamint állattartáshoz szükséges melléképületek is helyet kaptak. A ház előtt 2 autó számára is elég kocsibeálló került kialakításra.

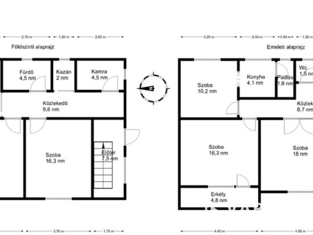
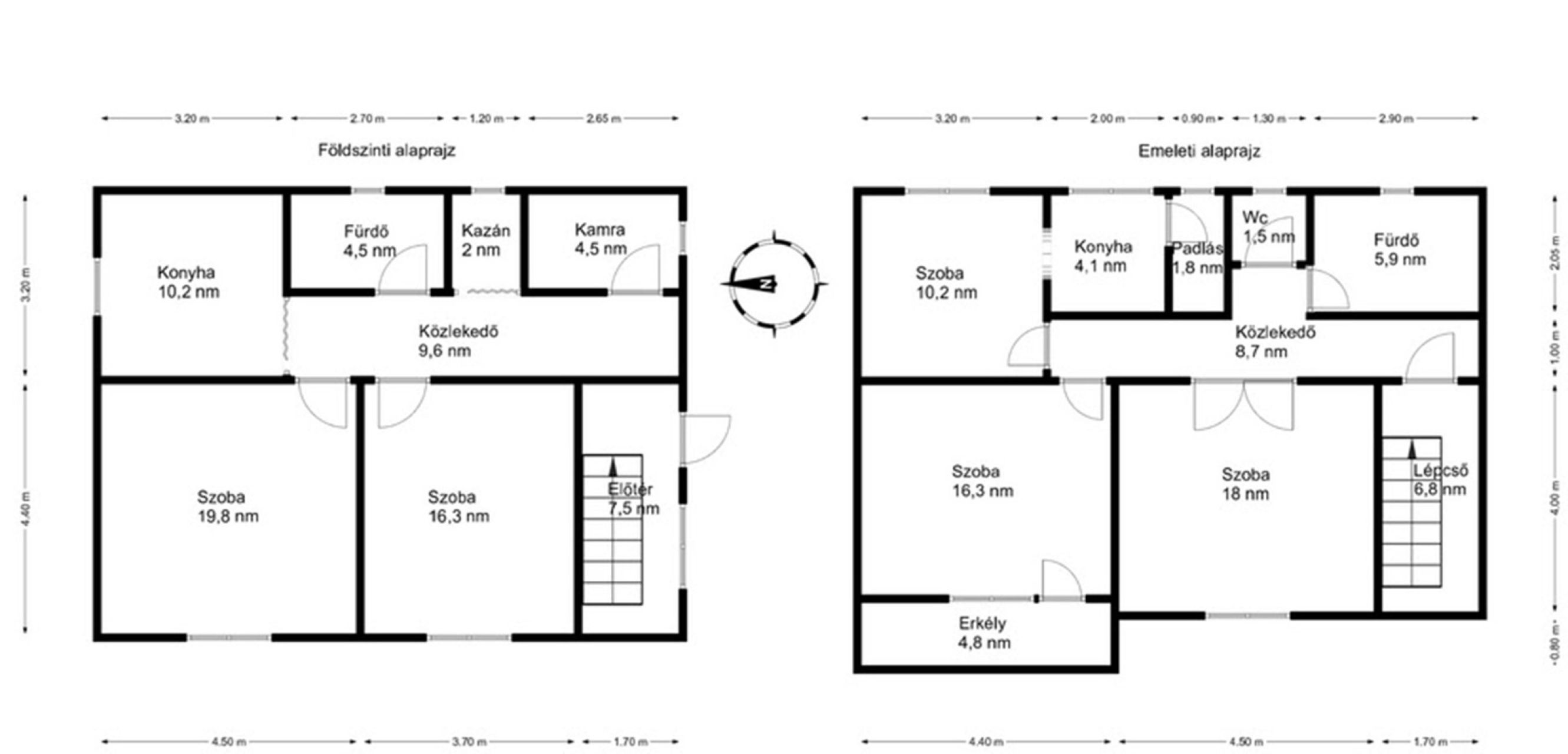
Az ingatlan 2 emeleti szinten összesen 150 nm hasznos alapterülettel rendelkezik, így nagyobb családok számára is ideális választás lehet. A lakótér jó állapotú, kisebb korszerűsítések után igényes, modern élettér kialakítható belőle. A tulajdonosok megújították a villamoshálózat jelentős részét, valamint a földszint műanyag ablakokat kapott. Az emeleti ablakok fa szerkezetűek, hőszigeteltek. A településen nincs vezetékes gázszolgáltatás, a helyiségek fűtéséről egy vegyes tüzelésű kazán gondoskodik radiátorok segítségével.

Zajk településetől Letenye kisváros, a horvát határ, valamint az m7-s autópálya is csupán néhány percre található. A település, valamint az ingatlan is megfelel a falusi csok szabályainak! Tekintse meg személyesen is az ingatlant, és fedezze fel a ház, valamint a környék adta lehetőségeket. Megtekintéshez minden esetben telefonos egyeztetés szükséges!

Stolcz Gábor prémium ingatlanértékesítő (+36 30 551 8808)

Stolcz Gábor
PRÉMIUM

Stolcz Gábor

9 éve a Városi Ingatlaniroda tagja
Ingatlanértékesítő
Letenye
+36 (30) 551 8808
Észrevétel a hirdetéssel kapcsolatban
Egy ingatlanos naplója