Tágas családi ház remek áron

3049 Nyomtatás Ajánlás Facebook

Zala vármegyében, a horvát valamint a szlovén határ közelében. A Letenye járáshoz tartozó Csörnyeföld település csendes mellékutcájában keresi új tulajdonosát ez a jó elolsztású, tágas családi ház. Az M7-s autópálya a település határában fut, így a közlekedés a Balaton, vagy épp Budapest felé kiváló.

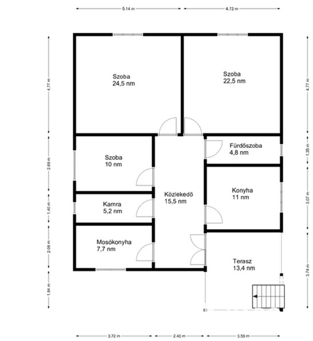
Az ingatlan sík, közel 1500 nm nagyságú területen fekszik, melyen régebbi melléképületek is helyet kaptak. A melléképületek jelentős ráfordítást igényelnek. Az épület átlagos állapotú, akár jelen állapotában is alkalmas lakhatásra, de korszerűsítés után valóban kiváló élettér alakítható ki benne. A ház alapja beton, falazata stabil. A helyiségek fűtéséről konvektorok gondoskodnak. Az utcafronti szobák alatt tágas, száraz pince húzódik. A lakótér helyiségei: 4 teljes értékű szoba, konyha, fürdőszoba, közlekedő, kamra, terasz. A 4 szoba akár nagyobb család számára is megfelelő, tágas otthont biztosíthat. Az ingatlan nem lakott, így adásvétel után rövid időn belül birtokba vehető.

A vásárláshoz Falusi Csok, vagy akár az Otthon Start program is igénybe vehető.
Személyes megtekintéshez minden esetben telefonos időpontegyeztetés szükséges!

Stolcz Gábor prémium ingatlanértékesítő (+36 30 5518808)

Stolcz Gábor
PRÉMIUM

Stolcz Gábor

9 éve a Városi Ingatlaniroda tagja
Ingatlanértékesítő
Letenye
+36 (30) 551 8808
Észrevétel a hirdetéssel kapcsolatban
Egy ingatlanos naplója