Zalaegerszeg, Csácsi városrészében, eladó családi ház!

9685 Nyomtatás Ajánlás Facebook

Zalaegerszeg, Csácsi városrészében vált eladóvá, ez az 1977-ben, egy 2712m2-es telekre megépített családi ház. Az ingatlan beton alappal, 30-as tégla falazattal és pala tetőfedéssel rendelkezik.
A telken egy garázs, egy külön bejáratú igény szerint akár lakrésznek is hasznosítható épület és egy nagy fedett tároló is megtalálható. A házban felújítási munkálatokat a tulajdonosok nem végeztek, viszont nagyon jó belső elosztásának köszönhetően igényes modern belső tér alakítható ki.
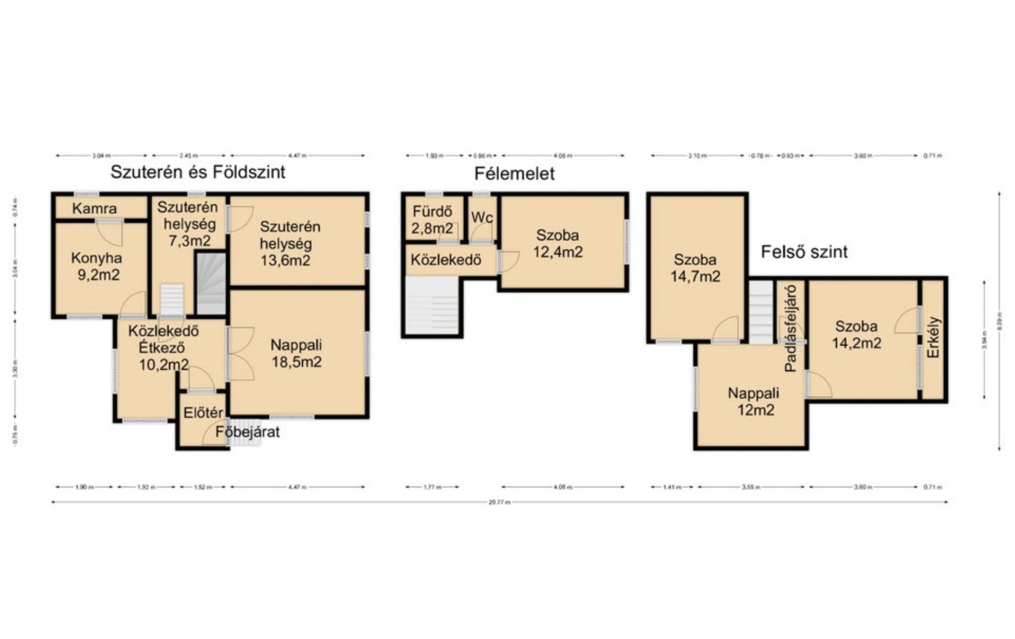
A belső lakrész szinteltolt kivitelezéssel készült.
A ház melegét egyedi gáz, cirkó kazán, radiátorok segítségével szolgáltatja.
Közművek közül a víz, villany (3 fázis), gáz, szennyvíz rendelkezésre áll.
A nagy melléképület, akár vállalkozásra is tökéletes lehet.
Belső lakrész helységei:
Földszint + szuterén: 2 tárolóhelység (szuterén szinten), egy nappali, előtér, közlekedő, étkezősarok, konyha kamrakapcsolattal,
Fél emelet: külön fürdő, külön mellékhelység, szoba,
Felső szint: 2 külön bejáratú szoba, nappali, padlásfeljáró.
Ha Ön szeretne egy jó elosztású családi házat, amit saját igényei szerint alakíthat, csendes nyugodt, zöld övezetben Zalaegerszegen, akkor ez az ingatlan kiváló választás lehet.
Kulcs az irodában. A hirdetési ár irányár.

Hohl József
PRÉMIUM

Hohl József

10 éve a Városi Ingatlaniroda tagja
Régióigazgató
Nagykanizsa
+36 (30) 608 6857
Észrevétel a hirdetéssel kapcsolatban
Egy ingatlanos naplója